

2018年,金輝集團與中梁控股集團攜手拿下優步學府地塊,不惜重金定制金輝三大全生命周期產品線中的品質標桿——優步系,優步系已在全國打造了20多個項目,以高品質的生活和樂享的理想,獲得市場的高度認可。項目更是在傳承金輝“優步系”優質基因的基礎上,結合肥西當地客戶的需求,進行全新升級,為肥西開啟優步生活新時代。
優步學府通過優出行、優產品、優服務、優成長、優格調、優鄰里、優資源開啟合肥優步時代。項目緊鄰地鐵三號線延長線,一站式生活通達全城;坐享麗景湖公園、古梗公園、潭沖河濕地公園三園環繞的天然生態美景,24小時鮮氧循環;幼兒園、小學、初中、高中12年優質教育資源環伺;項目景觀設計從業主切身體驗出發,打造“輕奢”現代簡約,雅致居所,社區中心配有室外中央會客廳、全齡段親子體驗區,老年活動廣場,兒童活動中心等,品質生活,優人一步;金輝物業國家一級資質物業,為生活保駕護航;
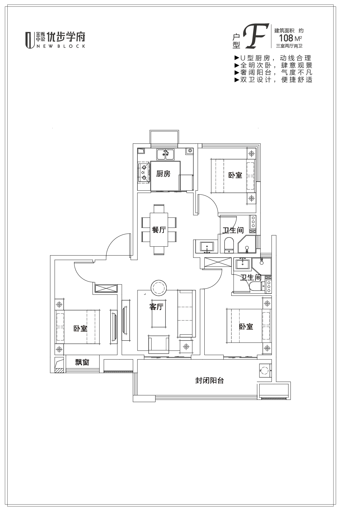
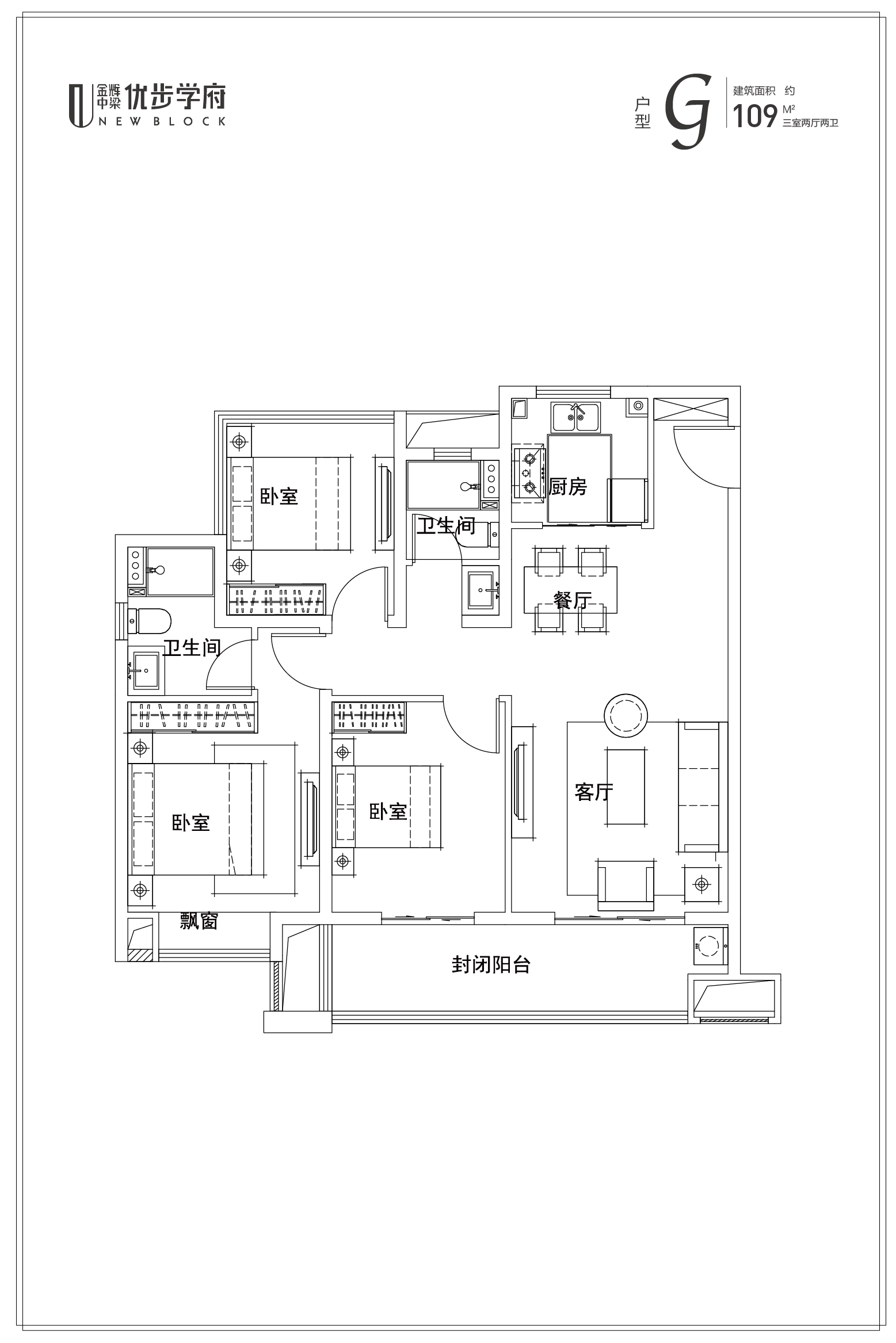
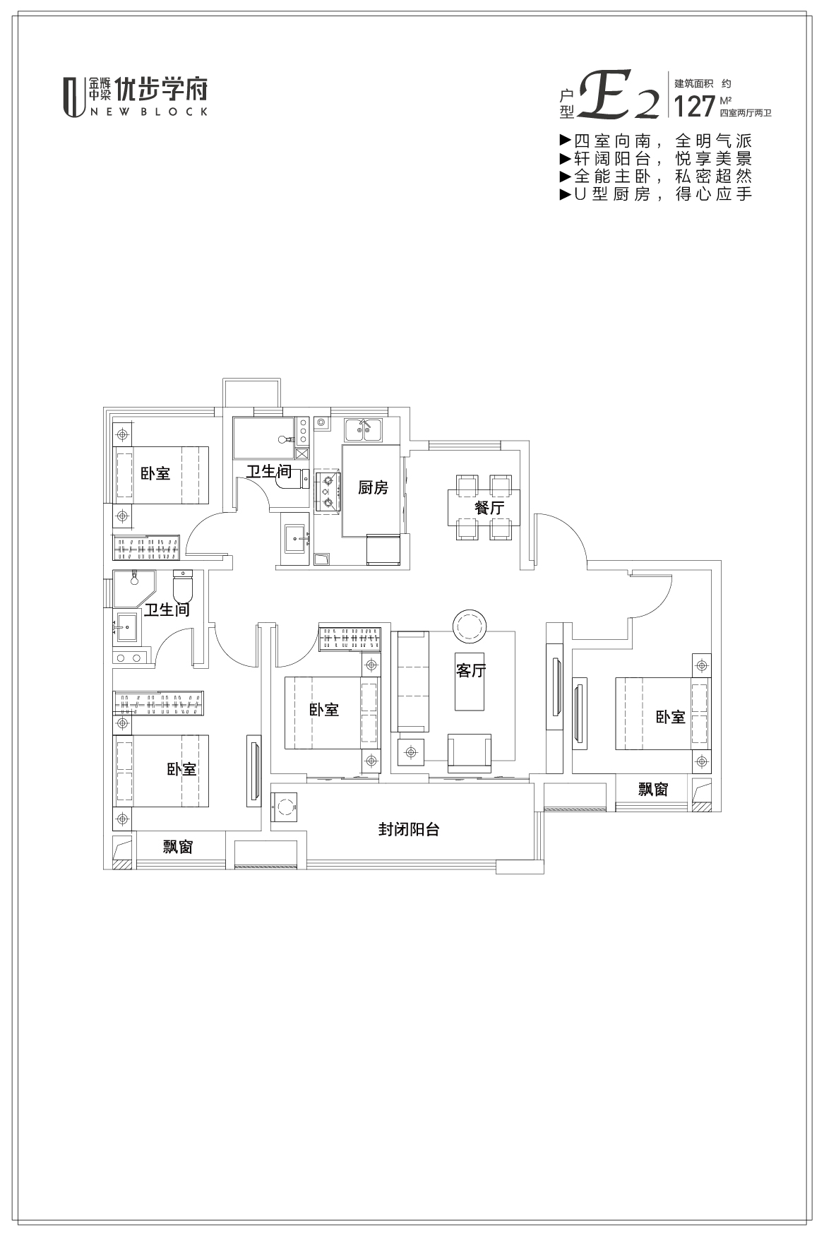
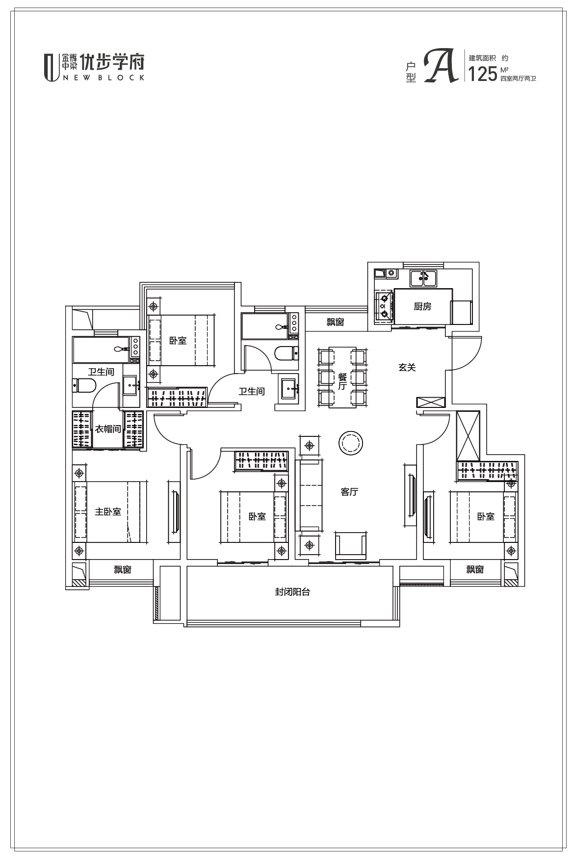
優步學府建筑面積約26萬方,容積率2.0,綠化率40%,共計規劃31幢樓,分別為8F洋房,11F洋房,18F小高層產品,24F高層產品,約1928戶,采用南低北高,錯落分布,采用純板式設計。建筑面積約92-128㎡書香高層,114-138㎡奢闊洋房滿足多樣化居住需求,全明通透,方正格局戶型,科學動線規劃展現大家族的恢弘氣度,超寬橫廳,雙景觀陽臺,延伸室內空間,豪華主臥套間設計,專屬衛生間,為主人營造尊貴享受。





【便捷交通】項目緊鄰青龍大道,北接青龍潭路到經開區紫云路,南到深圳路,向西約1500米路程即可到達合肥南北大動脈金寨南路。其次合肥主干道翡翠路、蓬萊路高架(建設中)則從區域直通經開、政務、高新核心,另有方興大道、錦繡大道、云谷路、深圳路約15分鐘車程快速聯通濱湖新區。除此以外沿方興大道直通機場高速,至新橋機場也僅需40分鐘左右;區域內公交有691、692、693、696、699等線路;城際之間乘坐30路、31路、32路、33路可分別直達市中心杏花公園、高鐵南站,政務區萬達,南七里站。項目距離合肥地鐵3號線延長線(規劃)睿嗣路站僅800米。
【公園休閑】項目坐享麗景湖公園、古梗公園、潭沖河濕地公園三園環繞的天然生態美景,24小時鮮氧循環,是適合人居的宜居之所。不久的未來,魅力水岸、綠色海綿、詩意田園三大景觀組團將陸續建成。養生休閑、樂活園藝、生態探索、雨水花園、健康生活、都市活力等多個主題景觀空間,為河居生活增添更多健康活力。
【商業購物】項目自帶約1700平方商業,建成后能夠滿足您正常的生活需求,除此以外項目周邊各種生活配套十分完善,萬派廣場大潤發超市、中街水晶城永輝超市、肥西百大購物中心百大合家福超市等大型商業中心,無論是日常生活、休閑娛樂、家庭消費,都能快速實現,繁華生活一站式享受,滿足各個年齡、階層的生活需求。
【名校教育】從幼兒園到高中,一站式菁英教育就在家門口。項目內部將代建幼兒園,面積約4170平方米,12個班級。項目北側規劃建成師資力量雄厚的【48班新小學】,項目西側規劃示范初中,東側則緊鄰合肥八中教育集團銘傳中學。
【無憂醫療】安徽省婦女兒童醫療保健中心將落戶在項目南側,青龍大道與深圳路交口東北側,總投資18億,建筑面積約26萬方,將建成國內一流,國際領先的婦女兒童醫院,為您與您家人的醫療健康保駕護航 ;
【幸福物業】合肥金輝中梁優步學府定制金輝物業專屬級服務,金輝物業國家一級資質物業,服務范圍已覆蓋全國五大經濟圈、20余座核心城市。金輝物業為業主搭建400聲納系統全國統一客服中心,建立微信端社區服務平臺,方便業主報修、咨詢、追蹤進度及投訴,同步升級4大安防體系,通過專業化、人文化、生活化的服務團隊,提供優質的客戶服務,為每一位業主的房子保值增值保駕護航!